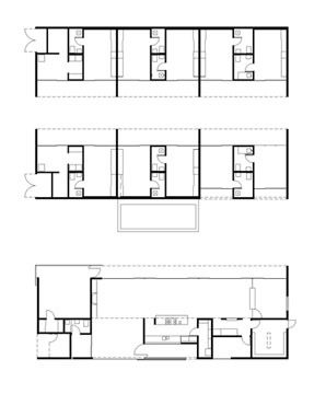
Brophy Jesuit High School Residence
Location:
Phoenix, AZ
Completed:
2003
Pre-design service, including architectural selection, for a 10 unit residential complex on a tight bud- get. Construction completed 2003 and received the Phoenix House of the Year Award. Architect: DeBARTOLO Architects (Phoenix, AZ)
Resin Elements: MAYME KRATZ Phoenix, AZ
Project Team:
Architect: DeBARTOLO Architects (Phoenix, AZ)
Resin Elements: MAYME KRATZ
Member Information:

